Lagos terreno p/construção de 1764m2, zona ultraprivilegiada
Preço: 700 000 €Lagos terreno p/construção de 1764m2, zona ultraprivilegiada
Especificações
- Área útil200 m²
- Área do terreno200 m²
- Classe EnergéticaIsento
- TipoVenda
- AMI22503
- ConcelhoLagos
- FreguesiaLagos (São Sebastião e Santa Maria)
- Id do anúncio44063311
- Id do anunciante052715
Descrição
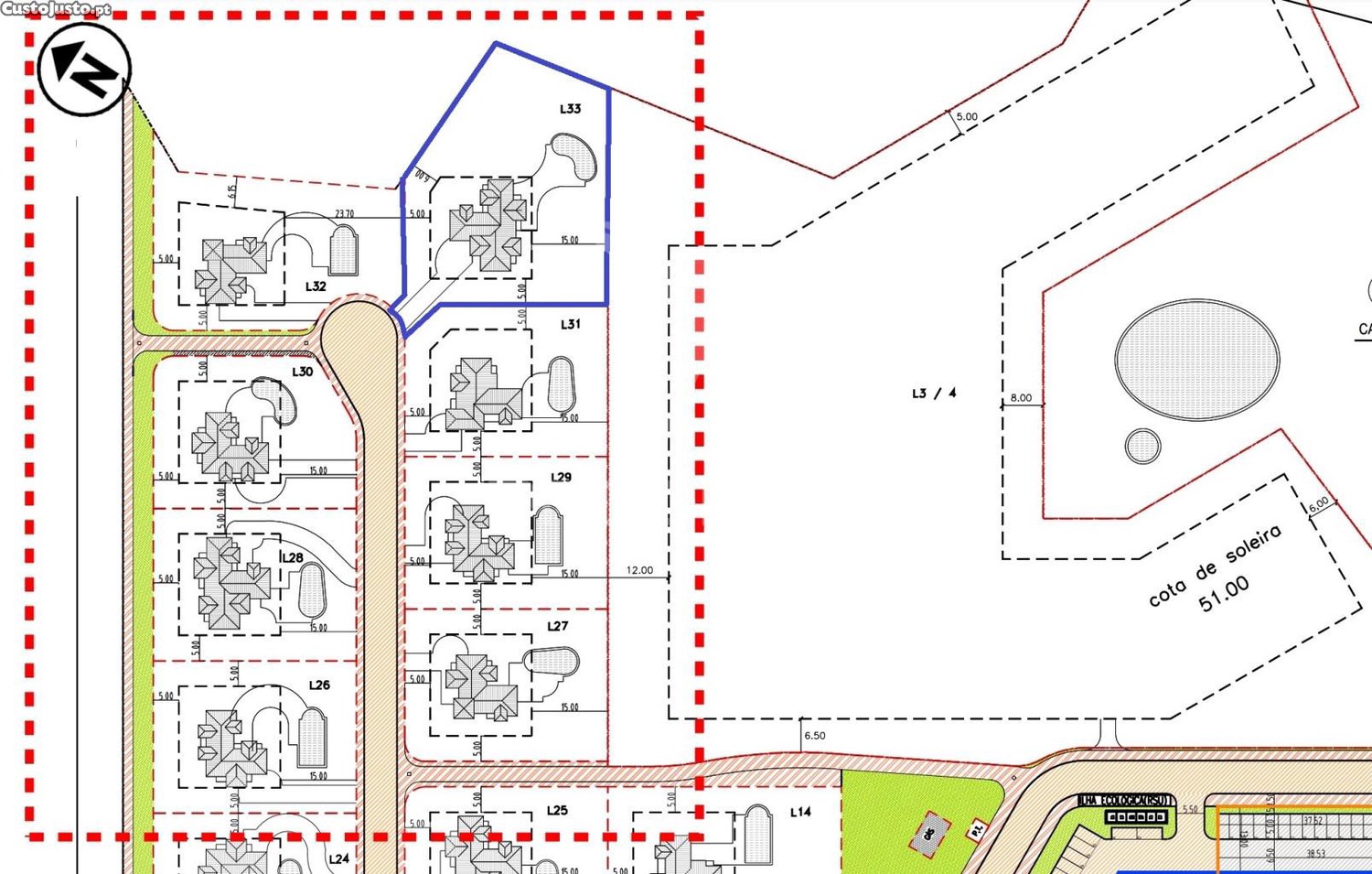
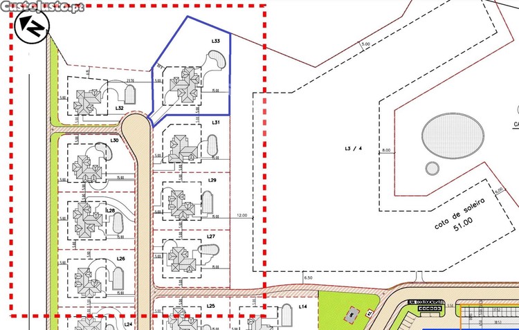
Lotes de terreno exclusivos em Porto de Mós, LagosApresento-lhe uma oportunidade única: oito lotes de terreno situados em Porto de Mós, uma das zonas mais exclusivas e privilegiadas de Lagos. Em uma área onde os terrenos são raros, estes lotes representam as últimas opções disponíveis no mercado, oferecendo uma chance rara de adquirir uma propriedade em uma localização invejável.As imagens que acompanham este anúncio revelam um documento que detalha a proximidade das principais atrações de Lagos, tanto a pé quanto de carro. A zona oferece uma variedade de opções para todos os gostos: desde praias de rara beleza e trilhos à beira-mar até restaurantes requintados e o charmoso centro histórico, que se encontra a apenas 15 minutos a pé. O percurso mais deslumbrante leva-o da Praia de Porto de Mós até à Praia da Luz, ao longo das falésias, proporcionando vistas de tirar o fôlego.Este local não é apenas um destino de excelência para a vivência, mas um refúgio ideal para aqueles que buscam uma vida tranquila, sofisticada e segura, com acesso fácil a todas as comodidades e entretenimento que Lagos tem para oferecer.Cada um dos oito terrenos tem uma área que varia entre 1.193 m² e 1.764 m². A Câmara Municipal de Lagos aprovou projetos para a construção de moradias de tipologia T3, com 200 m² de área de implantação, distribuídos por dois pisos e uma cave, garantindo espaço e conforto para toda a família.Lagos, reconhecida como uma das cidades mais encantadoras do Barlavento Algarvio, continua a atrair aqueles que buscam qualidade de vida em uma das regiões mais procuradas e prestigiadas do Algarve.Se acredita que sua família merece viver em um dos locais mais bonitos e seguros da região, não hesite em contactar-me para agendar uma visita ou obter mais informações sobre esta oportunidade exclusiva.Caso seja necessário, temos ao seu dispor um serviço de corretagem para o financiamento da sua compra.Predimed PORTUGAL Mediação Imobiliária Lda.Avenida Brasil 43, 12º Andar, 1700-062 LisboaLicença AMI nº 22503Pessoa Coletiva nº 517 239 345Seguro Responsabilidade Civil: Nº de Apólice RC65379424 Fidelidade
Serviços adicionais
Verifique as melhores opções de crédito ou seguro para o seu caso.
Localização
Faro - Lagos
Predimed Portugal
Anunciante desde Jun. 2010